68 Ranch Road
Air Ranch – Okotoks, AB
About
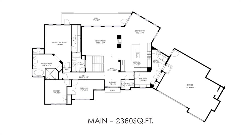
LUXURIOUS ESTATE BUNGALOW with 4700sq.ft. space on one of the largest lots in highly sought after Air Ranch, just ten minutes south of Calgary in the charming town of Okotoks. If you are looking for PRIVACY, OPULATENT SPACES with QUALITY FINISHING, A/C, HEATED TRIPLE GARAGE, HUGE DECK & GORGEOUS ½ ACRE LOT, then this is it! **Click 3D video** for virtual tour. 2360SQFT MAIN LEVEL is laid out perfectly with open concept plan, 10’ high ceilings, spacious entrance, large living room with two-sided fire place, gourmet kitchen with huge island, and dining room with windows all around. This level also features primary bedroom with walk-in closet and stunning ensuite bathroom, two other bedrooms and full bathroom, large mud room with built in lockers, half bath and laundry. Soft close drawers, auto lights when closet doors are opened, on demand hot water at every tap, built in sound system. LOWER LEVEL is professionally finished with heated floors, 9’ ceiling, and features recreation room with built-ins, wet bar, office, theatre room, two additional bedrooms and another full bathroom. Triple garage is heated & fully finished with built-in cabinetry. HUGE LOT with 140’ width by 167’ length, landscaped beautifully with mature vegetation, large stamped concrete patio, 32’ width composite deck, underground sprinklers, gazebo and two sheds. AMAZING COMMUNITY with bike trails, walking paths & natural bird sanctuary … and just minutes from golf courses, schools, sport fields, rec centre, health clinic, great shopping & amenities. If you are looking for ELEGANCE, LUXURY & PRIVACY with the tranquility of small-town life just minutes from Calgary, then this is the one!
Contact
