43 Ranch Road
Air Ranch – Okotoks, AB
About
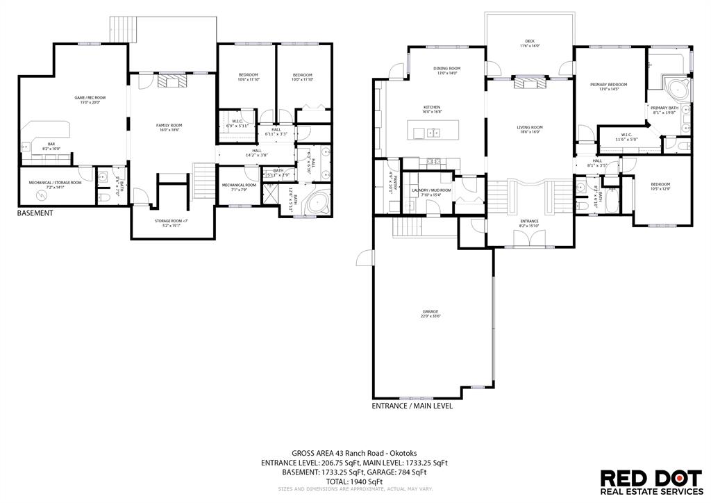
LUXURIOUS FORMER AIR RANCH SHOWHOME with superb layout, HUGE 1/3 ACRE LOT, AMAZING GOLF COURSE LOCATION … 2BDRMS up & 2BDRMS down, WEST yard, PLUS MOUNTAIN VIEWS! **Click 3D video for virtual walk-through**. MAIN floor features 1940sq.ft.+ space with large living room w two-way fire-place & vaulted ceiling, gourmet kitchen with custom maple cabinetry, large island & walk-in pantry, and superb dining with windows overlooking yard. Spacious owner’s suite boasts gorgeous ensuite bath with STEAM shower with 11 shower heads, soaker tub, walk-in closet, and double sink vanity. Main floor also features large den (or second bedroom), another full bathroom, and generous laundry room. Brazilian hardwood & slate floors throughout. LOWER level offers 1600sq.ft.+ more space, 11’ ceilings, family room with second fireplace, games room with custom bar & built-in TV’s, and two more bedrooms with full bathroom. IN-FLOOR HEAT, two furnaces, AC, smart wiring & sound surround throughout the house. GORGEOUS 170’ x 85’ YARD is beautifully landscaped with mature vegetation, irrigation system, concrete patio area, and spacious deck … and offers views of golf course & Rocky Mountains. PLUS OVERSIZED 22’x33’ garage, exposed aggregate driveway. If you are looking for luxurious bungalow-style living in a prestigious community, and enjoy golf course & mountain views, then this is it!
Updates – shingles (2015), furnaces (2019/2020), garage door (2013). Home has been superbly maintained, inside and out.
Contact
