#402 - 404 1 Avenue SE
NONE – Diamond Valley, AB
About
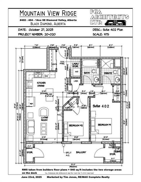
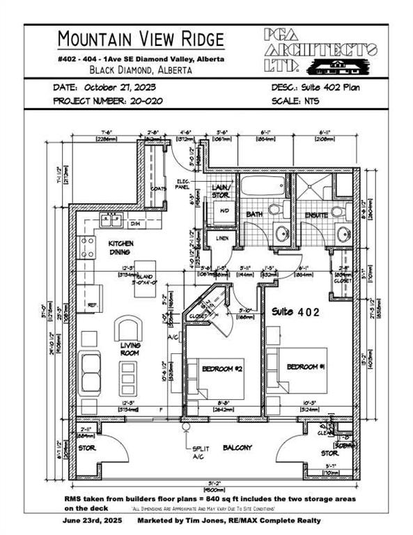
Top Floor, south facing, brand new and never lived in, 2 bedroom condo has come available for your enjoyment. This apartment is in the last phase of adult oriented Mountain View Ridge condo complex. The building is completed sold out with any new apartment buildings at least 2 years away from being built elsewhere in town. Great mountain views off the 6ft x 22ft covered deck. Beautifully finished with luxury vinyl plank flooring, quartz counter’s, flat finished 9 ft ceilings, and recessed lighting in kitchen area. This unit come complete with 2 bedrooms and 2 bathrooms, and a In-suite stacked laundry room. 2 good sized storage rooms off each end of the deck. (Storage rooms are included in the total sq footage of the unit). Natural Gas bbq line on the deck. Air Conditioning. Cement core floor construction makes these apartments quiet allowing the building to be Pet Friendly. Owners can have up to 2 small or medium breed dogs. There is even a dog wash in the heated parkade. Parking included is a large inside parking stall. Amble guest and street parking is available. The interior walls are all steel studs and the sheeting on the building is plywood. None of that cheap chip board and crooked wood studs used in most of the other new apartment buildings today. There is a craft and hobby room, exercise room and social room on the main floor. The parkade is the main level so suites are on the 2, 3 and 4th floors. Heat and water/sewer is included in the low condo fees of $262/mo. You just pay for your electricity, cable/Internet and phone.
Listing provided courtesy of Pillar 9. Disclaimer: The information contained in this listing has not been verified by CIR Realty and should be verified by the buyer.
Contact
